GPO Tundish
GPO Tundish
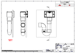
Compact general-purpose tundish for in-wall condensate lines on heat pumps and ventilation systems. Ideal for high-density builds and intertenancy walls.
-
- In-wall tundish for condensate drains
- Discreet design hidden behind a general purpose outlet (GPO) cover
- Rubber seal fits 25mm condensate pipe
- Ø50mm solvent weld outlet
- 20mm x 60mm inspection window
- Made in NZ










