Allthrough
Allthrough
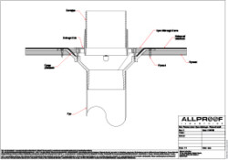
The Allproof Allthrough is a unique solution to meet the requirements of multi-level balcony drainage. The system features a closed sleeve for straight-through levels and an open sleeve for levels where the surface drainage needs to be allowed to feed into the downpipe.
The unit is suitable for a floating deck/tile application or a membrane finish balcony.
System options include:
- Solid one-piece ASA UV-stable plastic clamp ring and pipe sleeve
- Durable two-piece stainless steel sleeve with ASA or bronze clamp ring
- Brass and thick-walled PVC bases for heat applied membranes
- PVC base for liquid-applied membranes
- Suits downpipe sizes from 65mm to 150mm
Proudly designed and manufactured in New Zealand.
Open Plastic Allthrough
Open SS Allthrough
Closed Plastic Allthrough
Closed Stainless Steel Allthrough
Square Allthrough
Roof Drainage and Balcony Drainage Systems
The AT100 O has been hydraulically tested using an independent NATA-accredited laboratory. It is suitable for draining the roof and individual balconies up to 5 litres per second without splash from the downpipe through the Allthrough grating onto waterproof membrane level. For all other product selections, roof drainage will require a closed sleeve.
Flow Rates
The Allproof Allthrough product range has been tested using independent NATA-accredited laboratories. Please contact Allproof for results and details.

View Full Catalogue





































